YOUR REAL ESTATE FRIENDS, MANAGERS & INVESTMENT ADVISORS


A LIFESTYLE ENRICHED BY PRIVACY, SERVICE AND ACCESS TO THE ULTIMATE LUXURIES
The successful track record by all Turnberry developments can't be disputed, their new Turnberry Ocean Club Residences in Sunny Isles is yet another successful result of decades of experience in the Luxury Residential World. Just take a look below at the magnificent vision of its creators.
You can always contact us if you'd like to learn more it or schedule a visit, we are happy to assist you. Meanwhile we leave you with a little story and lots of visuals from the TOCR...
Your arrival under the porte cochére marks your entry into the elevated realm of Turnberry Legendary Service,TM the renowned culture of impeccably rendered, intuitive personal service that has been the promise of the Turnberry name for over fifty years.
Deferential, discreet and assured, Turnberry Legendary Service is always at work in countless ways, endeavoring to make your every moment as pleasant, productive and rewarding as it can possibly be.
Turnberry Ocean Club Residences will enjoy the benefits of a dedicated, in-house concierge to service resident requests, including but not limited to the following:
Connoisseur-level knowledge of top destinations for every occasion
Arrangements scheduling private air transportation
Travel and hotel accommodations
Luxury car services
Premium tickets to shows, sporting events and concerts
Golf tee-time reservations at Turnberry Isle Country Club
Personalized dining recommendations and reservations at coveted restaurants
Exclusive access to the most sought-after nightclubs, bars and lounges
Group dinners with menus hand-crafted by celebrity chefs
Private dining options for any size party
Private shopping experiences at luxury brand stores at Aventura Mall
Dry cleaning
Event and party planning
Floral orders
Maid service
Pet care, grooming and pet sitting
Delivery services (groceries, packages, etc.) and Catering
Private transportation arrangements to Turnberry Marina and Fontainebleau Aviation
ONLY 18 UNITS AVAILABLE!
Unit #4305
Asking Price: $29,750,000 - 6 Bedrooms, 9 Bathrooms, 1 Half Bath
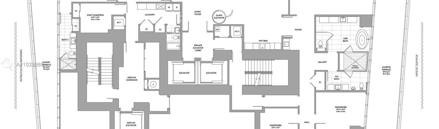
Developer Inventory! EXCLUSIVE PENTHOUSE TRIPLEX RESIDENCE-TOWER SUITE NORTH-LIMITED COLLECTION SKY HOME- EXPANSIVE IN SCALE & UNIQUE. 10,750 sq ft. Easy flow thru residence thru-out 3 FLOORS, PRIVATE ROOFTOP SWIMMING POOL, HYDROTHERAPY SPA & SUMMER KITCHEN, direct Ocean & Intracoastal views, 10 CEILINGS, GYM, STAFF QTRS. Imported Snaidero cabinetry & stone countertops, Gaggneau appliances, Spacious walk-in closets. Turnberry Ocean Club Residences is a 54-story tower composed of 70,000 SF of luxury amenities w unrivaled, world-class service, including the 3-story private signature Sky Club w private pools, dining, health & wellness spa & entertainment. Receive membership privileges to Turnberry Isle Country Club & priority access to Fontainebleau Aviation & Turnberry Marina.
DELIVERED UNFURNISHED-DESIGNER READY. Contact Us to schedule an appointment

SKY VILLA #3704
Asking Price: $16,500,000 - 5 Bedrooms, 7 Bathrooms, 1 Half Bath
View Sky Villa Floor Plans
DEVELOPER INVENTORY! LIMITED COLLECTION RESIDENCES-SKY VILLA S. DELIVERED UNFURNISHED-DESIGNER READY. 6,695 sq ft. Stunning DUPLEX Residence “D” South flowthru residence w direct Ocean & Intracoastal views. 20 CEILINGS in LIVING RM/BALCONY w 10-11 ceilings thru-out. Imported Snaidero Italian cabinetry & stone countertops, top-of-the line Gaggneau appl, 11 deep oceanfront terrace w summer kitchen+ PRIVATE POOL, and SPA TREATMENT ROOM. Spacious walk-in closets. Turnberry Ocean Club is composed of 70,000 SF of luxury amenities w unrivaled, world-class service, incl the 3-story private signature Sky Club w sunrise/sunset pools, priv dining, health/wellness spa & entertainment. Residents receive membership privileges to Turnberry Isle Country Club & priority access to Fontainebleau Aviation & Turnberry Marina. Contact Us to schedule an appointment







































